ID : 1038
Căn hầm trú ẩn của gia đình Thảo Điền Quận 2 Sài Gòn
biệt thự fieco thao dien, bán biệt thự fideco thao điền, fideco thao dien, biệt thự cao cấp fideco thảo điền, nhà biệt thự thảo điền, biệt thự fideco
.jpg)
Công trình hoàn toàn là bê tông đem tới cảm giác như căn hầm trú ẩn nhưng vẫn thông thoáng và đầy nắng, gió.
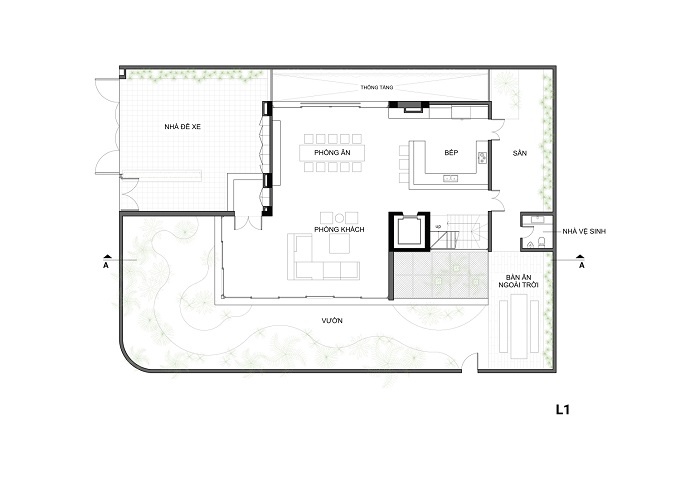
Ngôi nhà trên mảnh đất rộng hơn 500 m2 ở Sài Gòn sử dụng chất liệu hoàn toàn là bê tông làm kết cấu cũng như phân chia không gian.
Trong nhà, hệ cột bê tông được gộp thành ba chân đế đỡ sàn bê tông đan hình caro (waffle slabs). Ngôi nhà dù có diện tích lớn vẫn chắc chắn, không gian và tầm nhìn cũng được mở rộng.
Ba chân đế bê tông này còn định hình không gian sử dụng.




Ở tầng trệt, chân đế thứ nhất ngăn cách phòng khách với không gian bên ngoài, chân đế thứ hai bản chất là lõi thang máy, chân đế thứ ba kết hợp với hai chân còn lại tạo thành đường biên giữa khu vực sinh hoạt và không gian phục vụ (những không gian hỗ trợ sinh hoạt như như toilet, nhà kho, cầu thang, hành lang).
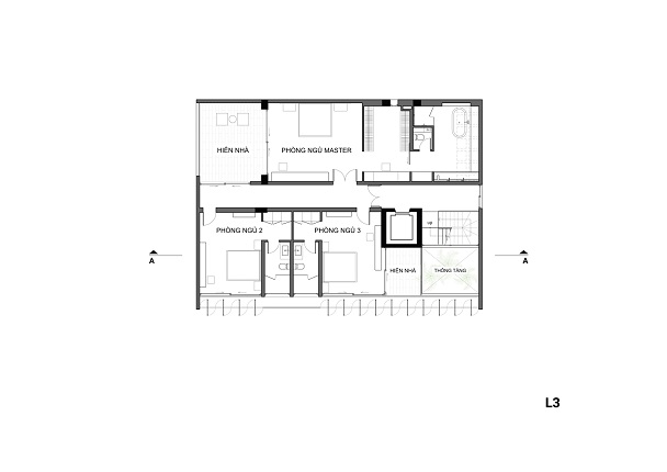
Vị trí của chân trụ thứ nhất và chân trụ thứ hai giúp trần phòng khách và phòng ăn được nâng cao, nhấn mạnh cảm giác rộng lớn của không gian. Lên các tầng trên, hai chân này cùng những bức tường vừa ngăn cách bên trong với bên ngoài vừa chia nhỏ phòng ở.
Cũng nhờ ba chân đế mà căn nhà có thể bố trí những hệ cửa kính lớn, đưa nắng và gió vào nhà. "Căn hầm" bê tông kiên cố nhưng vẫn thoáng đãng.
Căn hầm trú ẩn của gia đình Thảo Điền Quận 2 Sài Gòn. Với nối kiến trúc vô cùng độc đáo - lạ - đắc biệt - tiện nghi. Căn biệt thự tại Thảo Điền Quận 2 Sài Gòn đem đến tiện nghi môi trường giá trị sống tốt nhất cho gia chủ











ĐẶT LỊCH XEM ĐẤT LIÊN HỆ
Hotline Mr Tuân 0901855999 ( Zalo - Viber - Whatsapp)
Email: nguyentuan6868@gmail.com